The Iseami House by Robles Arquitectos is a work of science as much as it is an achievement of design. This home rests on a hill above the ocean on the Peninsula de Osa in Costa Rica, a location with 5% of the world’s biodiversity– yet 20km away from the nearest town. To build such a home, Robles Arquitectos were tasked with designing a fully grid-free, self-sustainable structure that could manage the demands of this hot, humid environment.


RoblesArq has followed their design process named: SDRA (Dynamic system Robles Arquitectos) which, during the investigation stage,evaluates 10 important elements as: Site, Climate, Energy, Water, Materials, environment, atmosphere, cost, innovation with the use of passive strategies and the implemented processes.These elements will be analyzed to develop a design plan and a management plan during the building lifecycle in order to reduce the negative impact this house could bring to the natural environment and then, to minimize the negative impact that nature could create in the building, this because our main concept is to create a very low maintenance house.
The secluded project site is located at 30 km from the closest town, Puerto Jimenez, therefore, the house doesn’t have any public service supply as electricity or water, and this condition obligates the institute to invest on a 100% self-sufficient house. During the design process, decisions were takenin order to bring the water and energy supply.
The existence of a water concession on the protected forest inside the property, allows the project to consider a natural potable water source for its use, then the water volume is utilized in order to produce energy with 2 low impact hydroelectric generators that generate a total of800KW/H.Furthermore, Casa Iseami becomes a solar power plant with a production capability of 10.800KW/H, this because the roof has been designed in order to have the orientation and position to maximize its production. The roof material has great structural capacities, so the access to the roof for maintenance is possible (The use of a solar hot water tank provides comfort to the users). The hybrid energy systemprovides with success enough energy to the project, the caretaker’sand maintenace housing and the existing lodge for the participants of the institute.



The materials for the house were selected following the results given by an investigation process done to the existing project near the site. This way we took the results and then decide which were the best materia
ls to use in order to create a low maintenance project. All the proposed materials were tested in order to evaluate its behavior on the difficult environment that the Osa peninsula has because of its humidity, high percentage of rain, mould, fungi and its flora and fauna.
The structural and electro mechanic design has been inspired on an exo-skeleton insect, this way the creation of open spaces between walls and ceilings are eliminated, creating a benefit for the indoor air quality because we avoid the creation of mould and plagues common in the projects around.
Within the chosen materials, the thermal-panels (Versawall and Versapanel by Centria) are chosen as the main material for walls and roof because of its solar reflectance index, structural and acoustic properties and ability to give the thermal comfort without using empty spaces on the walls. This material brings the opportunity to build the house, piece by piece as a Lego, a great strategy to minimize the use of transportation in order to lower the carbon footprint of the institute and the ability to build the house with fast and minimum labor on this secluded location. Because of the high structural capabilities of the material, the amount of steel structure was lowered considerably, saving the use of the natural resources needed for the anti-seismic structure. Furthermore the thermal-panel is a very light and easy to install, low maintenance and highly resistant material for humidity.

Passive design strategies have been successfully implemented to handle the sun exposure, relative humidity, natural illumination and ventilation inside the bioclimatic considerations of the project. Relative humidity is managed to create a healthy and comfortable space. The strategies used are, elevating the house 1 meter above the ground (water permeability in the ground will be possible), ideal orientation (Southeast-northwest)for cross ventilation and the installation of two polycarbonate skylights that provide the control of sunlight exposure in the interiors of the house, preventing UV to damage the furniture and Indoor environmental quality for its occupants. Large overhangs create shadows all day long in order to control the interior temperatures and natural illumination together with the thermal capacities and white color of the envelope. The use of recycled plastic louvers (Trex) creates a second envelope that surrounds the house in order to maximize the temperature control and rain exposure.On the other hand, the white color in the totality of Iseami has the goal to be able to visualize any insect or mould creation inside the house, frame and create a contrast with nature, maximize natural light and solar reflectance index (SRI 100). The roof design allows the occupants to have an integration with the mountains around with an “open to the sky” concept, this way, cross ventilation, daylight and views are present in every single space around the house.

One important goal of Iseami house was its recyclable potential, therefore, the material selection needed to be 100% recyclable at the end of its lifecycle, therefore, recycled plastic, glass and mainly the steel (structure and panels) have been choose for the project. Plastic materials at the interior are not included to avoid the outgassing of any toxic compound found in certain plastics, sealants or aditives. Instead, the Versawall and regional materials as white mosaic floors creates a simple but well balanced interior.
The construction system is based on a prefab method planned in order to get the construction time and low environmental impact on the site. The main benefit about that is the adaptation and evolution potential with the community inhabitants, which have a poor economy and will be able to imitate these solutions in different scales with very simple materials.
The distribution of the house looks for a new way of living where all the activities have the possibility to be developed outside, this way the integration between the interior and the exterior become succesfull and natural, creating possibilities to enjoy nature on its original state as much as the occupants desires it.
Iseami House is the result of an investigation during the design process of a tropical house built on a remote and difficult site in which the main objective was to promote the benefit of the well being of the community and its occupants, all thru an emergent tropical architecture concept.
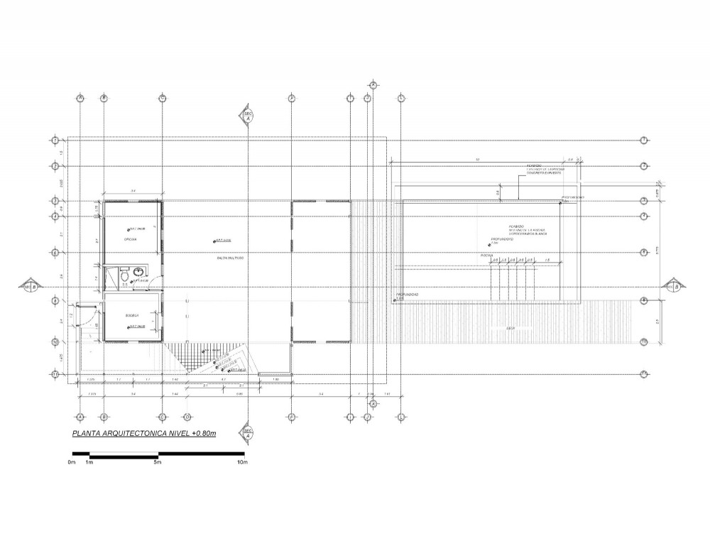
Ground floor plan
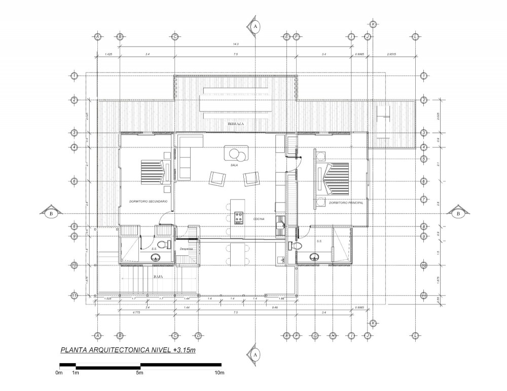
second floor plan